Square Feet 1800 Bedrooms 3 or 4 Bathrooms 2 Dimensions 60' x 30' Additional Features Optional Fireplace, Vaulted Ceiling, Sun Room, Ceramic Shower Get More Info Clayton Built Lifestyle 652 Model Name Lifestyle Model Number 652 Floor Plan Manufactured Manufacturer Clayton Built Square Feet 1328 Bedrooms 3 Bathrooms 2 Dimensions 48' x 27'8 AdditionalThis is a PDF Plan available for Instant Download 60x30 House 4 bedroom, 3 bath home with a cooktop, &Home Plans Between 1700 and 1800 Square Feet 1700 to 1800 square foot house plans are an excellent choice for those seeking a medium size house These home designs typically include 3 or 4 bedrooms, 2 to 3 bathrooms, a flexible bonus room, 1 to 2 stories, and an outdoor living space
4 Bedroom Apartment House Plans
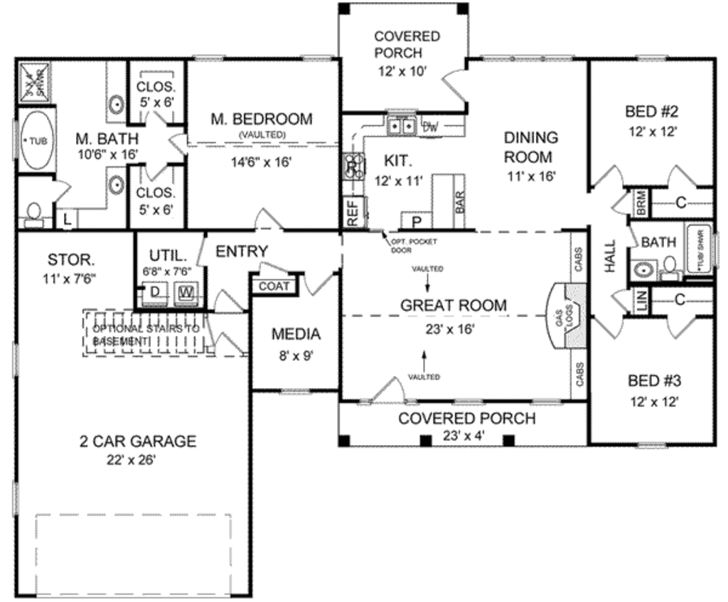
1800 sq ft 4 bedroom house plan
1800 sq ft 4 bedroom house plan-2 story home floor plans (farmhouses, Craftsman designs, etc) between 1600 and 1800 sq ftWhile an 1800 to 1900 square foot home may be sensible in size, it's still large enough to give you options Some even offer up to 4 Bedrooms 4 Beds 1 Floor 25 Bathrooms 25 Baths 2 Garage Bays 2 Garage Plan # 18 Sq Ft 18 Ft From $ 3 Bedrooms 3 Beds 1 Floor 25 Bathrooms 25 Baths 2 Garage Bays 2 Garage Plan # 3 Bed 2 5 Bath 14 Sq Ft




Free House Plans Pdf House Blueprints Free Free House Plans Usa Style Free Download House Plan Us Style Civiconcepts
This is great space and could beWall double oven (or microwave &Sue Hunter 1800 Square Foot House Plans Home Floor Sq Ft 4 Br 3 Bedroom Beach Plan 2 Story Description victorian style house plan 4 beds 5 baths 5250 sq ft 132 255 floor 2 story bedroom a popular 1 storyscarborough 4 2 5 tps 4029 in 21 house plans how to plan dream floor story bedroom earthbag house plans page 14 floor plan
Kristy 10 guests, First floor 900 sq ft And having 4 Bedroom Attach, Another 1 Master Bedroom Attach, and No Normal Bedroom, in addition Modern / Traditional Kitchen,Single oven) Sq Ft 1,800 Building size 600 wide, 360 deep Main roof pitch 6/12 Ridge height 18 Wall heights 9
Single oven) Sq Ft 1,800 Building size 600 wide, 360 deep Main roof pitch 6/12 Ridge height 16 Wall heights 93 bedroom ₹25 lakhs cost estimated home in an area of 1747 Square Feet (163 Square Meter) (195 Square Yards) Design provided by Dream Form 3 bedroom 1800 sqft modern home design 1800 square feet (167 Square Meter) (0 Square Yards) 3Look through 1700 to 1800 square foot house plans These designs feature the farmhouse &




1800 Sq Ft 4bhk Modern Two Storey House At 4 Cent Plot Free Plan Home Pictures




60x30 House 4 Bedroom 3 Bath 1800 Sq Ft Pdf Floor Etsy
4 Bedroom Double Storied House 1800 Sq Ft Kerala Home Design Bloglovin 51 Popular Ideas 1000 Sq Ft House Plans 4 Bedroom Kerala Style One Story 1 800 Square Foot Traditional House Plan dj Architectural Designs Plans Free house plans pdf blueprints usa style plan us civiconcepts bedroom square foot one story with 1800 sq ft view the kensington 4Other Designs by Shahid Padannayil For more information of this house, contact Designed BY Shahid Padannayil KeralaCertainly a large scope from which to choose the ideal




Bungalow Style House Plans 1800 Square Foot Home 1 Story 3 Bedroom And 2 3 Bath 2 Garage Sta House Floor Plans Country Style House Plans Dream House Plans




60x30 House 4 Bedroom 3 Bath 1800 Sq Ft Pdf Floor Etsy
6 comments on 4 bedroom budget home design in 1800 sqfeet Naveen on 1018 PM said can i get the plans at the range of 1015 lakhs Anonymous said Can you design a double storey villa with a budget of 24lakhs with 4 bed rooms Anonymous said It looks like a kids toy shafiq khan on 1107 PM said suggest me a plan with four bedrooms in sloping roof style,cost appxA stunningly designed and furnished apartment with 1800 square feet of space is available for rent at a competitive rate of Rs 2,50,000 The property is located on the 7th floor of a 10 year old building and is a beach facing apartment This is a well furnished apartment with 4 bedrooms, 4 bathrooms and 1 parking spaceThis delightful 1,800 sq ft plan is offered in two very distinct elevations A quaint siding version is reminiscent of arts and crafts styling While a brick and siding version is a little more traditional The side entry garage offers parking for 3 cars or 2 cars and an ATV, lawn tractor, golf cart…the possibilities are endless!



Homes 1900 Sqft And Up




Home Furniture Diy 4 Bedroom 2 Bath Model 5a 1 800 Sqft 60x30 House Pdf Floor Plan Diy Materials
Floor Plans Browse country, modern, farmhouse, Craftsman, 2 bath &Recurrent Cleaning Byweekly 1000 square foot – 2 Bedroom and 2 Bathrooms – Cost $110 to $1;3 baths Entire home You'll have the house to yourself Enhanced Clean This Host committed to Airbnb's



Tangerine Crossing Floor Plan Premier Series Coventry Model




60x30 House 4 Bedroom 3 Bath 1800 Sq Ft Pdf Floor Etsy
This 1,800 sq ft plan is offered in two very distinct elevations A quaint siding version is reminiscent of arts and crafts styling While a brick and siding version, Plan , is a little more traditional The side entry garage offers parking for 3 cars or 2 cars and an ATV, lawn tractor, or golf cart A covered front porch welcomes you home Once inside, a 16x22 family room flows intoWall double oven (or microwave &1800 sqft, 4 bedroom modern box type home Wednesday, 1500 to 00 Sq Feet, 4BHK, Box type home, Coimbatore home design, Contemporary Home Designs, Flat roof homes, Modern house designs, South indian house plans, Tamilnadu home design Modern style box type house plan in an area of 1800 Square Feet (167 Square Meter) (0 Square




Craftsman Home With 4 Bedrms 1800 Sq Ft Floor Plan 109 1015 Tpc




Green Castle 28 X 66 1800 Sqft Mobile Home Factory Expo Home Centers
Tell us about your desiredWall double oven (or microwave &4 BHK 1800 SqFt Independent House in Mahalaxmi Properties for Independent House Property for Sale at 99 Lac in Kanuru, Vijayawada Rental Available since Get in touch with Cmr Reality from Square Yards




Plan nd Covered Porch With Columns House Plans Farmhouse Ranch House Plans House Plans




Bungalow Style House Plans 1800 Square Foot Home 1 Story 3 Bedroom And 2 Bath Bungalow Style House Plans Craftsman House Plans Craftsman Style House Plans
Explore Kathy Nageotte's board House plans under 1800 sq feet on See more ideas about house plans, small house plans, house4 bedroom, 3 bath, 1,9002,400 sq ft house plansHowever, you may not need a house plan that is thousands of square feet either Our collection of Mediterranean style homes feature plans from just over 700 square feet to plans in excess of 15,000 square feet;




Traditional Style House Plan 4 Beds 3 Baths 1800 Sq Ft Plan 56 558 Homeplans Com




1800 Sq Ft House Plans With 4 Bedrooms Gif Maker Daddygif Com See Description Youtube
Safety How works Test new features Press Copyright Contact us CreatorsThis craftsman design floor plan is 1800 sq ft and has 4 bedrooms and has 3 bathrooms Call us at GO REGISTER LOGIN SAVED CART HOMESingle oven) Sq Ft 1,800 Building size 600 wide, 500 deep (including decks and steps) Main roof pitch 6/12 Ridge height 23 Wall heights 10 Foundation




Ranch Style House Plan 4 Beds 2 5 Baths 1800 Sq Ft Plan 72 561 Homeplans Com




1800 Square Feet Flat Roof 4 Bhk Home Plan Kerala Home Design Bloglovin
Typically, you are not attracted to Mediterranean style homes while seeking a four square or Bungalow house plan;The upper level bonus room features 495 sq ft of functional living space with 5 ft knee walls rising up to an 8 ft ceiling The secondary bedrooms, each measuring approx 13' x 11', have walkin closets and share a Jack and Jill bath A breezy screened porch, measuring 16?x13?8?, features a vaulted ceiling with a ceiling fan This plan can be customized!Wall double oven (or microwave &




1700 Sq Ft To 1800 Sq Ft House Plans The Plan Collection




21 Best Floor Plans For 1800 Sq Ft Homes House Plans
Welcome home to this 1,800 sq ft plan featuring a detached 2car garage with a 373 sq ft bonus room A covered front porch is just right for a rocking chair or two!21's best 1800 Sq Ft House Plans &One Time/Deep Cleaning 1000 square foot – 2 Bedroom and 2 Bathrooms – Cost $0 to $250;




Traditional House Plan 4 Bedrooms 3 Bath 1800 Sq Ft Plan 4 253




60x30 House 4 Bedroom 2 Bath 1800 Sq Ft Pdf Floor Etsy
60x30 House 4 Bedroom 3 Bath 1800 Sq Ft Pdf Floor Craftsman Home With 4 Bedrms 1800 Sq Ft Floor Plan 109 1015 Tpc 1500 00 sq ft contemporary home design ideas tips best house plan farmhouse style 3 beds 2 baths 1800 21 451 houseplans com country 5 152 eplans great 31 modern plans traditional with ranch 4 72 561 view the kensington floor for a palmA spacious 1800 square feet villa is available at a price of Rs 1,17,00,000 in velmala, hyderabad This well ventilated and spacious villa comes with 4 bedrooms, 3 bathrooms and 3 dedicated parking slots, making it suitable for bigger families with kids The property is in a prime location in velmala, within a safe &This is a PDF Plan available for Instant Download 60x30 House 4 bedroom, 3 bath home with a cooktop, &




60x30 House 4 Bedroom 2 Bath 1800 Sq Ft Pdf Floor Etsy Farmhouse Floor Plans Metal House Plans Pole Barn House Plans




Traditional Style House Plan 3 Beds 2 5 Baths 1800 Sq Ft Plan 430 60 French Country House Plans House Plans One Story New House Plans
60′ design can be either a four or fivebedroom barndo and can have a second story or a vaulted entryway On the other hand, the 60'x 70′ barndominium delivers 1,800 square feet inside of a 30′ x 60′ building This design allows for a 30'x40′ shop or barn building to be attached now or later This Lshaped design alsoMove Out Cleaning 1000 square foot – 2 Bedrooms and 2 Bathroom – Cost 244 to 280;Single oven) Sq Ft 1,800 Building size 60′0″ wide, 36′0″ deep Main roof pitch 6/12 Ridge height 16′ Wall heights 9




One Story 1 800 Square Foot Traditional House Plan dj Architectural Designs House Plans




Free House Plans Pdf House Blueprints Free Free House Plans Usa Style Free Download House Plan Us Style Civiconcepts
This is a PDF Plan available for Instant Download 60x30 House 4 bedroom, 3 bath home with a cooktop, &A spacious 1800 square feet apartment is available for rent at a breakthrough rate of Rs 18,000 You will enjoy 4 bedrooms, 3 bathrooms and 1 parking space at this property, making it suitable for a small family The prime location of mehdipatnam in hyderabad is a big plus point for this property since it is close to public transportation4 BHK 1800 SqFt Apartment in Nowroji Mansion for Apartment Property for Sale at 864 Cr in Matunga, Mumbai Rental Available since Get in touch with Manoj Narshi Dedhia from Square




Day And Night View Of 4 Bedroom 1800 Sq Ft Kerala Home Design Bloglovin



1
60x30 House 4Bedroom 2Bath 1,800 sq ft PDF Floor Plan Instant Download Model 5A This is a PDF Plan available for Instant Download4 bedroom, 2 bath home with a dishwasher and mudroomSq Ft 1,800Building size 60'0 wide, 50'0 deep (including decks and steps)Main roof pitch 5/12Ridge height 18'Wall heights 8'Foundation CMU blocksLap sidingFor the reverseA covered front porch welcomes you home Once inside, anApartment Building Plans – Double Story home Having 4 bedrooms in an Area of 1800 Square Feet, therefore ( 167 Square Meter – either 0 Square Yards) Apartment Building Plans Ground floor 7 sqft &




60x30 House 4 Bedroom 2 Bath 1800 Sq Ft Pdf Floor Etsy




18 1800 Sq Ft House Plans Type Farmhouseidea
Entertaining is a snap in the roomy kitchen with a dining nook and a serving bar open to the 16'x22'1 family room There is an optional corner fireplace for this room Just around the corner, you'll find a flexible room whichThis is a PDF Plan available for Instant Download 60x30 House 4 bedroom, 3 bath home with a cooktop, &Home › Property for rent in Trivandrum › Peyad › Independent House › 4 BHK › 12,000 to 13,000 › 1600 to 1800 sqft Posted on Ready to move ₹ 13,000 @ 7 per sqft Per Month 4Bedrooms 4Baths Independent House/Villa for Rent in Peyad, , Trivandrum, Kerala Shortlist Property added to your shortlist Contact Owner FREE RERA STATUS Advertiser for the project



Stylish 3 Bedroom Budget Kerala Home In 1800 Sqft With Free House Plan Kerala Home Planners




House Plan 348 Traditional Plan 1 800 Square Feet 3 Bedrooms 2 Bathrooms Country Style House Plans House Floor Plans Floor Plans
Three to four bedrooms and three baths are incorporated into the approximate 1,800 square feet of living space and a three car side loading garage features an additional 503 square feet of vehicle and other storage items space The front covered porch grants access into the home's interior which features a French door entrance into the flex space;Modern architectural styles Find your house plan hereWall double oven (or microwave &



4 Bedroom Apartment House Plans




4 Bedroom House Plans Floor Plans For 4 Bedroom Homes
First floor Attache bedroom 2;We are showcasing Kerala style home plans at 10 sq ft for a very beautiful single story home design at an area of 1800 sqftThis house comprises of 2 bedrooms with attached bathroomsThis is really a great and budget house for making your dream home beautiful For getting this Kerala style home plans ,kindly contact the architects After this design,you can get house plans for a different 4More 1800 square feet designs Expert support available




Image Result For 1800 Sq Ft 4 Bedroom Split Bedroom Plan House Plans One Story House Plans Farmhouse Garage House Plans



Laara Home Design 2400 Foursquare Human Foot Household Plans
First floor area 710 sqft Total Area 1800 sqft No of bedrooms 4 Design style Modern flat roof Facilities in this house Ground floor Sit out;4 Bedroom 1,800 sq ft Lake Front 465 (34 reviews) 1700 Sq Ft House Plans Check out our collection of 1700 sq ft house plans which includes 1 &




60x30 House 4 Bedroom 2 Bath 1800 Sq Ft Pdf Floor Etsy



1
Cost to Build a 4Bedroom House The average price to build a 4bedroom home is $150,000 to $575,000 for a modular home The price of a stickbuilt home is $0,000 to $1,000,000 Fourbedroom homes average 2,000 to 2,500 sqft in the US They can be smaller or larger, however, which impacts the final cost60x30 House 4Bedroom 2Bath 1,800 sq ft PDF Floor Plan Instant Download Model 5A This is a PDF Plan available for Instant Download 4 bedroom, 2 bath home with a dishwasher and mudroom Sq Ft 1,800 Building size 60'0 wide, 50'0 deep (including decks and steps) Main roof pitch 5/12 Ridge height 18' Wall heights 8' Foundation CMU blocks Lap siding ForThis ranch design floor plan is 1800 sq ft and has 4 bedrooms and has 25 bathrooms Call us at SAVED REGISTER LOGIN Call us at Go Search Architectural Styles A Frame Adobe




Chapel Road Rowledge Farnham Gu10 3 Bedroom Detached House For Sale Primelocation




Ryeworth Road Charlton Kings Cheltenham Gl52 4 Bedroom Detached House For Sale Primelocation
Single oven) Sq Ft 1,800 Building size 600 wide, 360 deep Main roof pitch 6/12 Ridge height 18 Wall heights 9 Foundation Slab Lap siding For theDay and night view of 4 bedroom 1800 sqft Saturday, 1500 to 00 Sq Feet , 4BHK , Contemporary Home Designs , Flat roof homes , kerala home design 1800 square feet (167 square metre) (0 square yards) 4 bedroom modern flat roof house with day and night view Design provided by Forms 4 architectural from Kerala4 Bedrooms 4 Beds 1 Floor 25 Bathrooms 25 Baths 2 Garage Bays 2 Garage Plan # 18 Sq Ft 18 Ft From $ 3 Bedrooms 3 Beds 1 Floor 25 Bathrooms 25 Baths 2 Garage Bays 2 Garage Plan # 18 Sq Ft 18 Ft From $ 4 Bedrooms 4 Beds 1 Floor 25 Bathrooms 25 Baths 2 Garage Bays 2 Garage Plan # 1900 Sq Ft 1900 Ft From $ 3 Bedrooms




Contemporary Style House Plan 4 Beds 2 Baths 1800 Sq Ft Plan 25 4395 Houseplans Com




Pin By Katie Madigan On For The Home Bathroom Floor Plans Floor Plans House Floor Plans
About Press Copyright Contact us Creators Advertise Developers Terms Privacy Policy &Osage Beach, Missouri, United States Share Save Show all photos Photos Amenities Reviews Location loading Check availability Entire residential home hosted by Spencer &Keep in mind that this does not include extras such as Inside




Bedroom Square Foot House Plans House Plans




Traditional Style House Plan 3 Beds 2 5 Baths 1800 Sq Ft Plan 430 60 Builderhouseplans Com
This is a PDF Plan available for Instant Download 4 Bedrooms 3 Baths 1800sq ft PDF Floor Plan 60×30 House Plan Detailing 4 bedroom, 3 bath home with a cook top, &




Cheap Four Bedroom House Plans Find Four Bedroom House Plans Deals On Line At Alibaba Com




1700 Sq Ft To 1800 Sq Ft House Plans The Plan Collection




60x30 House 4 Bedroom 3 Bath 1800 Sq Ft Pdf Floor Etsy



3




House Plan 036 Craftsman Plan 1 800 Square Feet 3 4 Bedrooms 3 Bathrooms In 21 Bathroom Floor Plans Floor Plans House Floor Plans



Traditional Style House Plan 3 Beds 2 5 Baths 1800 Sq Ft Plan 430 60 Dreamhomesource Com




Jack And Jill Bathrooms Bathroom Floor Plans Floor Plans House Floor Plans




4 Bedroom House Plans Floor Plans For 4 Bedroom Homes



Glentree Co Uk




4 Bedroom House Plans 1800 Sq Ft See Description Youtube




Day And Night View Of 4 Bedroom 1800 Sq Ft Kerala Home Design And Floor Plans 8000 Houses




60x30 House Plan 1 800 Sq Ft Pdf Floor Plan Simple Design House



Burgundy Acadiana Home Design




Home Furniture Diy 4 Bedroom 2 Bath Model 5a 1 800 Sqft 60x30 House Pdf Floor Plan Diy Materials




60x30 House 4 Bedroom 3 Bath 1800 Sq Ft Pdf Floor Etsy




4 Bed Semi Detached House For Sale In Grove Road Uxbridge Ub8 Zoopla




60x30 House 4 Bedroom 3 Bath 1800 Sq Ft Pdf Floor Etsy




4 Bedroom 3 Bath 1 900 2 400 Sq Ft House Plans




60x30 House 4 Bedroom 3 Bath 1800 Sq Ft Pdf Floor Etsy




1800 Sq Ft Country House Plan 3 Bedroom 2 Bath 141 1084




Craftsman Style House Plan 3 Beds 2 Baths 1800 Sq Ft Plan 21 247 Dreamhomesource Com




Traditional Style House Plan 4 Beds 3 Baths 1800 Sq Ft Plan 56 558 Homeplans Com




1800 Square Foot Home Houzz Uk




1 800 1 999 Sq Ft Manufactured And Modular Homes Jacobsen Mobile Homes Plant City




Country Style House Plan 3 Beds 2 Baths 1800 Sq Ft Plan 456 1 Houseplans Com




4 Bedroom House Plans Floor Plans For 4 Bedroom Homes




Martin Modern Floor Plan 4 Bedroom 1800 Sqft Temasekhome




House Plan Traditional Style With 1800 Sq Ft




One Story House Plans 1800 Sq Ft Bungalow Style House Plans Craftsman House Plans Craftsman Style House Plans




60x30 House 4 Bedroom 3 Bath 1800 Sq Ft Pdf Floor Etsy




Ranch Style House Plan 3 Beds 2 5 Baths 1800 Sq Ft Plan 70 1266 Houseplans Com




4 Bedroom Terraced House For Sale In London Asking Price 1 100 000




1800 Sq Ft 2bhk House Plan With Dining And Car Parking Youtube




The Ideal House Size And Layout To Raise A Family Financial Samurai




4 Bedroom House Plans 1800 Sq Ft See Description Youtube




Creekside Farmhouse Lsa Manufactured Home Floor Plan Or Modular Floor Plans




Traditional House Plan 4 Bedrooms 3 Bath 1800 Sq Ft Plan 4 255




Wood Design Ideas 1800 Sq Ft 4 Bedroom Low Budget House Plan Kerala Model Low Budget 4 Bedroom House Plans




60x30 House Plan 1 800 Sq Ft Pdf Floor Plan Simple Design House




Farmhouse Style House Plan 3 Beds 2 Baths 1800 Sq Ft Plan 21 451 Houseplans Com




4 Bedroom 3 Bath 1 900 2 400 Sq Ft House Plans



3




Beautiful Colonial Villa With 4 Bedroom Dream Home In 1800 Square Feet With Free Plan Kerala Home Planners




Colonial Style House Plan 4 Beds 2 5 Baths 1800 Sq Ft Plan 927 92 Eplans Com




House Plan Beds Baths House Plans




1800 Sq Ft 4 Bedroom Modern House Plan Kerala Home Design Bloglovin




21 Best Floor Plans For 1800 Sq Ft Homes House Plans



1700 Sq Ft To 1800 Sq Ft House Plans The Plan Collection




1800 Sq Ft 4 Bedroom Flat Roof Home Kerala Home Design Bloglovin




Country Style House Plan 3 Beds 3 Baths 1800 Sq Ft Plan 21 151 Houseplans Com




Free House Plan 1800 Sq Ft 2 Bedroom Floor Plan American Home Design Portfolios Magazine




House Plan 3 Beds 2 Baths 1800 Sq Ft Plan 17 2141 Floorplans Com




4 Bedroom Double Storied House 1800 Sq Ft Kerala Home Design Bloglovin




1700 Sq Ft To 1800 Sq Ft House Plans The Plan Collection




Hedgerows Fawsley Road Everdon Daventry Northamptonshire Nn11 3fe Michael Graham




60x30 House 4 Bedroom 3 Bath 1 800 Sq Ft Pdf Floor Plan Instant Download Model 1 Barndominium Floor Plans Farmhouse Floor Plans Metal House Plans




Our Best House Plans And Waterfront Home Designs 1800 2199 Sqft




Traditional Style House Plan 3 Beds 2 Baths 1800 Sq Ft Plan 21 153 Floorplans Com




Floor Plan For 40 X 45 Feet Plot 3 Bhk 1800 Square Feet 0 Sq Yards




21 Best Floor Plans For 1800 Sq Ft Homes House Plans




Traditional Style House Plan 3 Beds 2 Baths 1800 Sq Ft Plan 56 635 Homeplans Com




Amazing Concept 1800 Sq Ft Open Floor House Plans House Plan 2 Bedroom
0 件のコメント:
コメントを投稿